ÇOLAKLI’DAKİ TURİZM YOLUNA İLİŞKİN MANAVGAT BELEDİYESİNDEN AÇIKLAMA
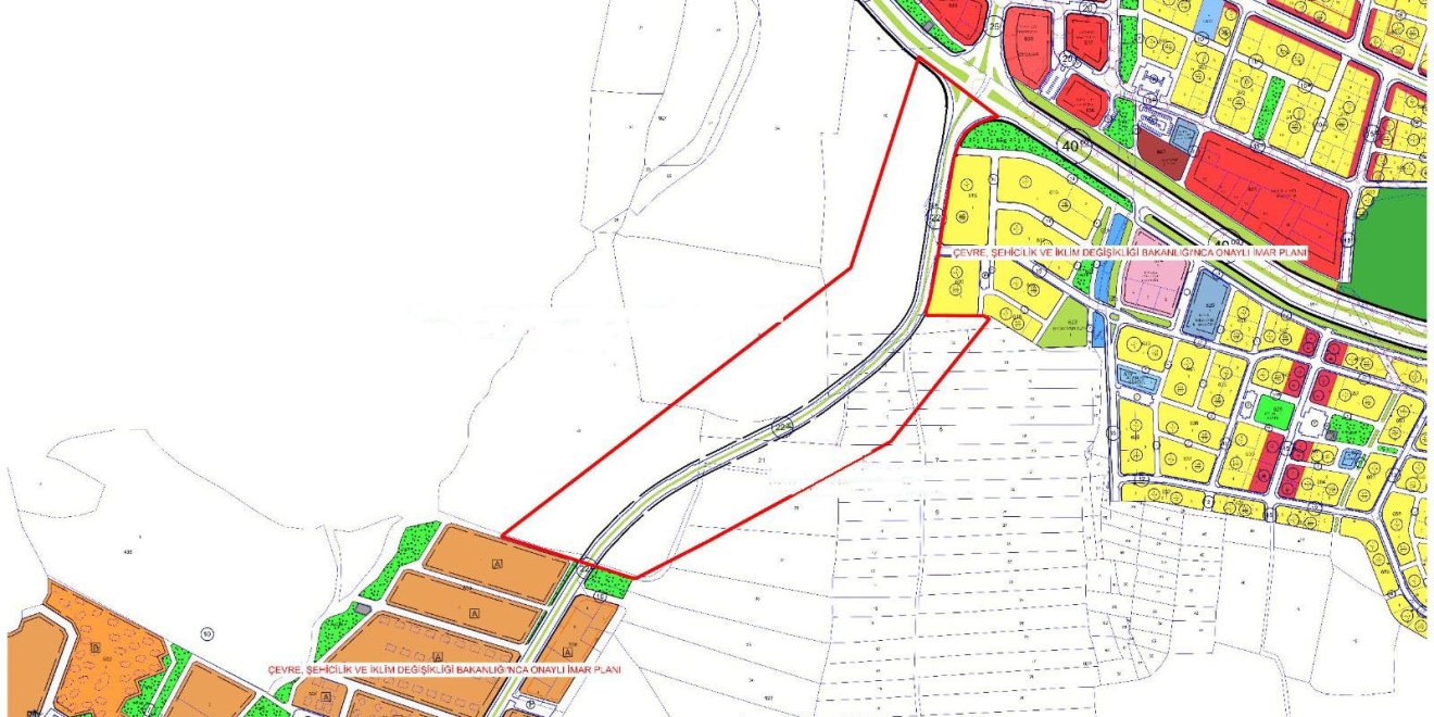
Manavgat Belediyesi, Çolaklı Mahallesi’nde Süral Caddesi olarak bilinen turizm yoluna ilişkin yazılı açıklama yaptı.Yapılan girişimler ve görüşmeler sonucunda söz konusu alanla ilgili kamu yararı kararı verilmesinin uygun görüldüğü belirtilen açıklamada, alınan kararla birlikte yaklaşık 160 dönümlük alanın planlama sürecinin önünün açıldığı ve yolun yeniden halkın kullanımına kazandırılması yönünde çok önemli bir aşamaya geçildiği bildirildi.
Belediye’den yapılan açıklamada şu ifadelere yer verildi:
“Çolaklı Mahallemizde Süral Caddesi olarak bilinen turizm yolunun kamuya kazandırılması, yol güzergahında yaşanan imar sorunlarının çözülmesi ve mülk sahiplerinin yaşadığı mağduriyetlerin giderilmesi amacıyla Belediyemiz tarafından 2020 yılında imar planı çalışması başlatılmış ve konu Bakanlığımıza sunulmuştur. Belediyemiz tarafından aynı talep 29.08.2024 tarihinde yeniden yinelenmiş, sürecin takipçisi olunmuştur.
Ancak geçen süre içerisinde kamu yararı kararı verilmediği için imar planı çalışmalarının tamamlanması ve yolun kamuya kazandırılması mümkün olmamış, mülk sahiplerinin açtığı dava sonucunda mahkeme kararı ile turizm yolunun bir kısmı trafiğe kapatılmıştır. Bu durum hem bölge halkımız hem esnafımız hem de turizm bölgesindeki ulaşım açısından önemli bir sorun oluşturmuştur.
Gelinen noktada, yapılan girişimlerimiz ve görüşmelerimiz sonucunda söz konusu alanla ilgili kamu yararı kararı verilmesi uygun görülmüş olup, alınan bu karar ile 160 dönüm alanın hem planlama sürecinin önü açılmış hem de yolun yeniden halkımızın kullanımına kazandırılması yönünde çok önemli bir aşamaya geçilmiştir.

Bu süreçte katkı sağlayan, sürecin çözümü noktasında destek veren başta Çevre, Şehircilik ve İklim Değişikliği Bakanımız Sayın Murat Kurum’a, Antalya Milletvekilimiz Sayın Tuba Vural Çokal’a, ilgili kurum ve yetkililere teşekkür ediyoruz.
Manavgat'ımızın ve hemşehrilerimizin ortak menfaatlerini korumak, kamu yararını gözetmek ve yaşanan sorunları çözmek için çalışmaya devam edeceğiz. İlçemizin planlı gelişimi, ulaşım altyapısının güçlenmesi ve vatandaşlarımızın mağduriyet yaşamaması için gerekli tüm adımları atmayı sürdüreceğiz.
Önceliği kamu yararı olan her çalışmada olduğu gibi, bu süreçte de Manavgat'ımız için taşın altına elimizi koymaya devam edeceğiz.”
YOL NEDEN KAPATILMIŞTI?
Çolaklı Mahallesi Fevzi Çakmak Caddesi’nde, Süral Kavşağı’ndan otellere inen yolun yaklaşık 100 metrelik bölümü Mayıs 2025’te trafiğe kapatılmıştı. Manavgat Belediyesi’nin açıklamasına göre, süreç içerisinde kamu yararı kararı verilmemesi nedeniyle imar planı çalışmaları tamamlanamamış, mülk sahiplerinin açtığı dava sonucunda mahkeme kararıyla turizm yolunun bir kısmı ulaşıma kapatılmıştı.